说在前面
养猫三年了,家里一共有四只小宝贝,最大的一只美短叫“Andy”,两只小美短分别叫“糖糖”和“牛奶”,还有一只橘猫叫“虎妞”。每天最开心的事情就是回到家,看到它们在门口迎接我,一边喵喵叫着,蹭我的腿,当时感觉满身的疲惫都退散了,这一点养猫的人应该深有体会吧。
按惯例,先放上主子们的美照:

这个大眼睛有虎皮纹的是Andy,它是最早来到我家的,是大哥哥~
性格呆萌可爱温顺,喜欢在墙上“跑酷”。

牛奶和糖糖也是美短,一胎生的兄妹俩,长得很像,其中牛奶在家里属于小霸王的位置,虽然年纪不大,但发福的一张大脸已经超过Andy啦~糖糖平时比较懒惰,喜欢躺在高处观察我们。

最后这个是虎妞,一只橘猫妹妹,也是最后加入我家的。性格非常粘人,喜欢跑到房间床上和我们待在一起。虽然目前为止虎妞是最苗条的一个,但也有发胖的趋势啦,毕竟“大橘为重”嘛~
鉴于工作很忙,没有太多时间陪伴它们,就想着要把家里装修得更适合猫猫生活一点,顺便也改改整体的装修风格。
在装修结束之后,小家伙们乐坏了,在家里上蹿下跳的,十分兴奋,我将整个家与猫咪们共享,对于改装目的不仅要求自己住的舒服,更希望是猫猫们喜欢的“豪宅”。如果你家也养猫,希望能把家改造成猫咪喜欢的样子,那就看下去吧!
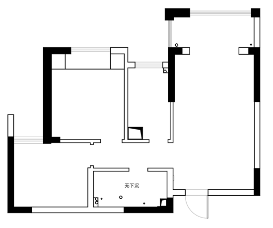
原始结构图

三维立体图

区域设计图

客厅
平面设计图

三维立体图

客厅是我精心为猫猫们准备的超长栈道和“跑酷空间”,里面有多个高处的小房子,它们愿意睡哪个都可以~事实证明四只猫都是非常满意的。

当它做好之后就是这样~
左边是休闲区,右边是电竞区,基本上完全按照设计图来的。
休闲区

休闲区撤掉了传统的沙发,在空中修了一个拼接式木栈道,从洗衣机上面的猫窝一直通向电竞区上方的猫窝,横穿了整个客厅沙发墙。

桌子采用的是可滑动设计,一方面在空间组合上更加自由,不受限制,另一方面猫猫也喜欢坐在上面“搭顺风车”,像是它们的玩具一样。

沙发上铺的是棉麻织物,作为一个罩子避免沙发被猫猫弄脏,同时棉麻的质感比较坚韧,不容易被猫爪抓破。

喜欢蓝牙音箱这种展现生活情调的小物件。

从窗边看整个休闲区和电竞区,采光良好,而且很宽阔。

平时和男友在电竞区一起开黑,猫猫们趴在我们的脚边,累了还可以撸猫,太幸福了~

整个客厅空间采光良好,也考虑到猫咪们喜欢晒太阳,所以特意换下了遮光窗帘,让阳光能够透进屋子里,暖暖的。

接下来看看电视墙这一面。

为了让起居空间更加开阔,打破了原有的纯粹的墙面设计,而将它和厨房的门结合在一起,同时也有了更多层次感。

去掉电视,做了投影仪的设计,直接让客厅变成家庭影院。
同时也将电视柜换成了书柜,方便阅读。

书柜上摆满了我收藏的书和一些喜欢的小玩意儿。
其中最喜欢的还是这幅画:《溺水的人》,所以将它摆在了显眼的位置。
旁边是一小瓶香水,散发沉稳的木质香气。

竹编小篮子平时用来装一些杂物,起到收纳整理的作用。里面的麦穗可以当逗猫棒使用,主子们可喜欢了~

当投影仪放下来的时候就是这样的,会挡住半个厨房门。

整体的观感还是非常不错。我和我家猫都很喜欢面前这个羊皮绒垫摇椅,和整个客厅的木质结构一样,既温暖又舒适。
手工区
手工区设计图

这是对于洗衣机和烘干机的规划图,上面还设计了一片大的猫窝。
左下角的空格处打算放上猫砂盆。
这是它完工后的样子~还是将柜门往上延伸了一点,让猫窝没有那么大了。
看~Andy正在上面休息~
然后这是收拾完毕之后,它堆满东西的样子。
因为猫天生喜欢待在高处,所以尽量开发空间里高的地方,来给它们搭建小窝。

这里也是整个客厅拥有最多阳光的地方,猫窝的挡板做成透明设计也是为了让阳光更好地照进来。小宝贝们可喜欢这里啦,经常地上趴着晒太阳。
哈哈,猫窝建在高处唯一不好的地方,就是我这个主人想和它们互动的时候,都需要踩在椅子上,才能摸到,但它们倒挺享受的。
将窗帘全部拉开的时候,是不是很亮?连旁边的玻璃陈列柜和木栈道的每一个角落都充满阳光~踩在小台阶上也算是我的常态啦。

拉上纱帘之后,则非常静谧、安详,所以一般做手工的时候我都会拉上它。

手工区其实就像小阳台一样,两边都是落地窗,安上纱帘是为了让整个空间显得更加梦幻。旁边地上摆的是猫猫们的小食盘。

这是做手账的工具盒,里面放满了我的收藏。

平时我都会在小桌子上铺上桌布,然后上面放上杯子、托盘、干花之类的,有一种凌乱的美感。

瓶子形状的冷水壶很特别吧?用这个倒水有一种倒酒的感觉。

平时除了撸猫,我最大的放松就是来手工区做手账,身心可以得到完全的放松,什么都不用想,沉浸在贴贴画画里,用艺术的方式记录生活。

另外一面窗下面是猫猫们的小碗,在培养它们同时进食的习惯。
当看到四只小宝贝埋在这吃的很香,老母亲心里满满的幸福感~
走廊

客厅对面是一条走廊,左边是卫生间,右边是厨房,都用了镂空玻璃的设计。
走廊尽头是卧室和衣帽间。

在走廊的视角看客厅是这样的。
厨房

我对于厨房的定位是:现代、美式、生活化。并不需要特别井井有条,但一定要有烟火气。这个“COFFEE”地垫我很喜欢,一是防滑,二是起到装饰作用。

厨房里有咖啡机、洗碗机、净水器、烤箱等等,平时做饭十分方便。冰箱上的冰箱贴和角落里的咖啡菜单等一些装饰品,都是属于生活的小情趣。

这边是透明的玻璃墙,和走廊对面遥相呼应,两边镂空设计能够让空间在视觉上看起来更宽阔。同时黑色包边也非常个性。

在外面看上去整个厨房就是这样,很美式现代的风格。
角落里的藤编花盆移栽了小树,能够让家里更有生机
。
从正面看上去是这样。透明推拉门的设计是为了不让猫猫跑进厨房,又能够让它们在外面蹲坐着也能看到我们的身影。
主卧

因为房屋整体走的是简约风,所以在卧室的布置上尽力达到最简。
将不必要的家具都拆除,只留下床、衣架、灯和一只玩具熊,在视觉上显得房间很大,而且不用那么整洁都不会显得杂乱,非常省功夫,适合我这种懒人一族~

直接以木制拼接墙作为床板,旁边的衣架也选用的是简易几何搭建的设计,将一切繁复都去除。房间里唯一的装饰品就是墙上的吊绳穿起的一些小物件,也是我自己手工做的,很有意思吧~

去掉床头柜,直接以一摞书就取而代之,上面放的是我养的仙人掌,平时想看书直接床头拿就是。床也不高,像一个大大的榻榻米,猫猫很喜欢进来玩。

房间里最大的亮点就是这个灯罩了,像一个灯笼,竹条手编工艺品。因为我一直比较喜欢手作的元素,对于这种朴素原始的美也很偏爱。
大的窗户也能日常保证房间的光照。
衣帽间

与房间相对的则是衣帽间,特意做了台阶的设计,一是台阶上每一个柜门都可以打开,存放一些杂物,二是有了台阶则会让空间显得更大,层次更丰富。

衣帽间里设置了工作的区域,窗边一个宽阔的写字台,上面摆放了一些饰物和电脑,平时有需要的时候就在这里办公。

衣帽间的衣柜都做成铺满整个墙壁的壁柜,这样存放的空间足够大,其中两面壁柜之间留了一个陈列架的空间,喜欢的鞋、帽、包和玩具都可以放在这里。
卫生间

卫生间在厨房对面,进来右手边就是盥洗台,同时将盥洗镜换成了镜面的柜子,既能满足需要,又同时能存放东西,一柜两用,非常推荐。
在后面也安装了内置灯光,很方便平时的梳洗。

垂下来的是一个“金色飞贼”样式的小吊灯,我是《哈利波特》迷,当时看到它的两个小翅膀就忍不住买下来了,刚好安装在镜面前,多一点情调。

卫生间的另一头就是浴室啦~安了一个大大的浴缸,和洗手台也做到了干湿分离,中间用防水布帘隔开,非常方便。同时玻璃墙也可以清楚地看到外面。
在门口看过去是这样的。

浴缸是一体式设计,外侧用粉色花纹瓷砖拼贴,非常有少女心。上面的置物架也做成了和墙面一体,摆放着精油和泡澡小黄鸭,我家猫猫们可喜欢了~

粉色瓷砖和简约灰墙组合在一起,莫名地好看~